POTIERS - VERDURE
DÉMOLITION ET RECONSTRUCTION DE L' IMMEUBLE POTIERS 2
Programme
Logement
Maître d'ouvrage
Beliris - SLRB - Logement Bruxellois
Localisation
Rue de la Verdure - Rue des Potiers à 1000 Bruxelles
Surface
11000 m²
Budget
13,5 M € HTVA
Date de conception
Février 2019
Statut
En chantier
Crédits images
R²D²
Doom

L’objet de ce marché est la démolition de la barre de logements R+7 « Potiers I » et la reconstruction de logements sociaux qui viendraient recréer un front-bâti dans les rues avoisinantes. L’aménagement paysager de l’ensemble est aussi à concevoir.

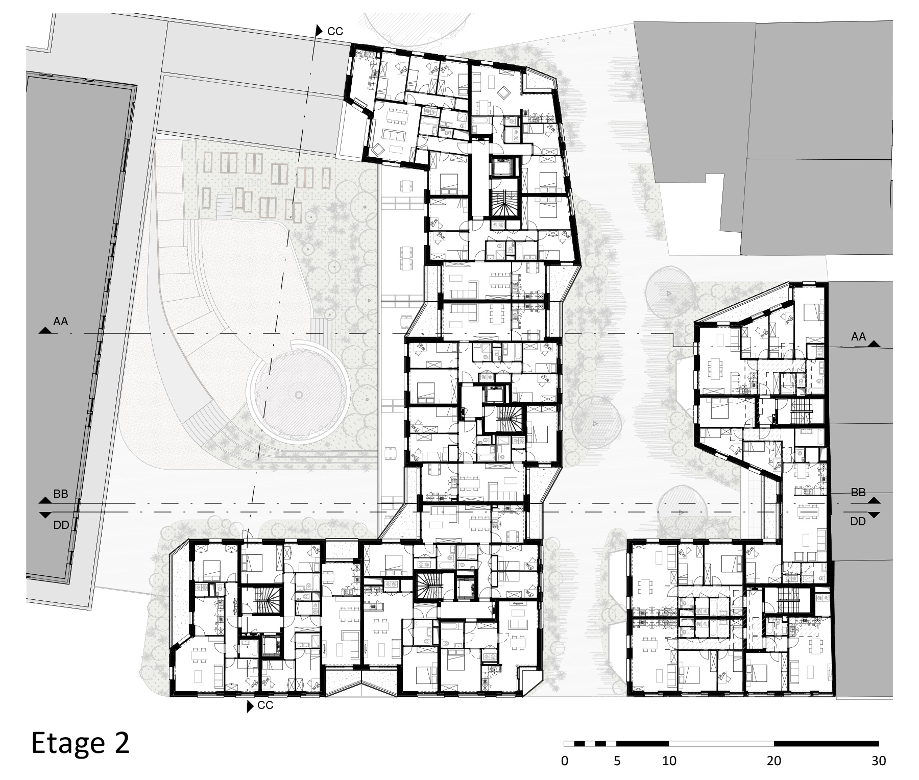
Le parti pris urbanistique de ce projet est de recréer un îlot avec le bâtiment R+12 « Potiers II » et de donner une vraie identité à la rue des Potiers qui traverse le site. Deux volumes bâtis sont ainsi esquissés.

La rue piétonne des Potiers se veut un espace propice à l’échange et la rencontre. L’implantation des gabarits qui l’entourent créé des contractions et dilatations de l’espace offrant des séquences visuelles riches qui invitent à la déambulation. Ce nouvel environnement permet également l’intégration de l’impasse de la ferraille à son nouveau contexte urbain. Un grand nombre de terrasses et séjours en façade ainsi que différentes entrées aux logements au RDC font vivre cet espace.

L’autre espace extérieur fondamental de ce projet est l’intérieur d’îlot créé entre l’immeuble « Potier II » et le nouveau volume qui lui fait face. Afin de rendre cet espace appropriable il faut lui conférer une identité forte qui le caractérise et ne pas considérer cet espace comme le résultat d’un interstice entre deux bâtiments imposants. Pour ce faire cet espace se développe en pente et se détache des façades de ses deux voisins. Il vient se raccrocher visuellement au premier étage de « Potiers II » où sont placés des locaux associatifs dont la façade est complètement vitrée, contrairement au RDC qui génère peu de vie ou d’activité. Les façades donnant sur cet espace sont aussi composées de séjours et terrasses. Derrière la pente de l’aménagement paysager se trouvent tous les locaux techniques; les logements bénéficient alors de l’ensemble des façades en lien avec les espaces extérieurs.

La plupart les appartements ont des espaces de vie traversants, bénéficiant et de la bonne orientation sur la rue des Potiers et de la vue dégagée sur l’intérieur d’îlot. S’ils ne sont pas traversants, alors les espaces de jour sont situés aux angles afin de toujours offrir plusieurs orientations et plusieurs vues. Des terrasses sont systématiquement implantées dans le prolongement du séjour et de la cuisine, beaucoup d’appartements en ont même deux. Elles permettent aux façades une vraie interaction avec l’espace extérieur et sont aussi le moyen ici de créer une séquence verticale en termes de volumétrie, de composition et de matérialité.

L’ensemble des différentes typologies sont réparties uniformément sur l’ensemble du site et notamment au sein même des circulations afin de favoriser les rencontres et créer du lien social.