VANDERGOTEN
53 LOGEMENTS CONVENTIONNES POUR CITYDEV.BRUSSELS
Programme
Equipement ,
Espace public ,
Logement
Maître d'ouvrage
Eiffage Development pour citydev.brussels
Localisation
Boulevard Émile Bockstael 104 à Laeken
Surface
8651 m²
Budget
11,2 M € HTVA
PEB
PEB 2017
Date de conception
Août 2016
Date de réalisation
Septembre 2020
Statut
Terminé
Crédits images
Photos : © Georges De Kinder
Images : © R²D²
Images : © Asymetrie
Publications

Le site Vandergoten est situé à proximité de la place Bockstael. Il s’agit d’un site dont la configuration est très spécifique, qui se situe dans un environnement dense et complexe, au confluent de voies importantes de circulation du réseau de transports public et privés tant en surface qu’en sous-sol. Aujourd’hui, la ville se construit aussi bien sur un principe traditionnel d’extension que sur un processus de régénération, ce qui est un phénomène relativement récent. La pénurie de terrains en centre urbain, proches des nœuds de circulations, oblige les développeurs immobiliers (publics et privés) et les auteurs de projets à faire preuve de créativité et à réinventer la ville dans une nouvelle densité souvent faite d’hétérogénéités.

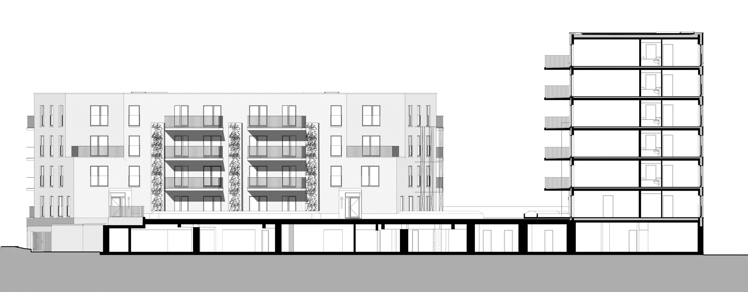
Nous avons voulu accentuer la relation avec l’espace public en donnant l’impression que l’espace à créer au-dessus de la dalle sur la voie de chemin de fer est prolongée vers l’intérieur du complexe de logements dans une fonctionnalité semi-publique et articulée sur le Point Vélo. Nous avons dès lors opté pour une ouverture sur toute la hauteur de la mitoyenneté en implantant la  façade à 4 mètres du mitoyen, créant ainsi une faille dans le front bâti en retrait par rapport au boulevard. L’objectif est de désenclaver le complexe de logements et d’accentuer sa relation avec l’espace public. Cette faille permet, de plus, d’apercevoir le second bâtiment au fond de la parcelle depuis le Boulevard Bockstael. Nous avons également prévu de refaire le pignon mitoyen de la maison n°302 en intégrant une œuvre d’art sur le thème « du vélo et du recyclage ». Cette œuvre d’art créera un repère caractéristique dans le boulevard Emile Bockstael qui identifiera le Point Vélo et par la même occasion tout le projet.

C’est pour garder la mémoire du lieu et recréer un usage vernaculaire que nous avons pris le parti de récupérer les briques des façades de l’immeuble à démolir et de les réutiliser pour les façades périphériques de l’ensemble de logements. Côté intérieur, par contraste et pour accentuer la luminosité, il sera fait usage d’un enduit sur isolant de teinte claire. Le site est nettement caractérisé par les voies de chemin de fer et un passé industriel. Les accessoires de façade seront déclinés dans cet esprit avec un aspect « acier corten » (teinte des éléments métalliques) et une nature paysagère végétale colonisante. Dans le même esprit, les revêtements de sol extérieurs en rez-de-chaussée sont en asphalte teinté et les balcons-terrasses sont en béton teinté. Le résultat de ce développement urbain avec ces 2 bâtiments, dont chaque fois une façade est orientée sur l’espace public (chemin de fer et Pocket-Park), et qui sont articulés autour d’une esplanade piétonne de rencontre conviviale en relation également avec l’espace public, est de nature à donner au projet une qualité globale « comme s’il avait toujours été là ! », offrant une valeur ajoutée au quartier.

Outre la performance en circularité qui a permis d’obtenir le label et le prix be.circular, les bâtiments sont très performants en termes d’énergie comme l’exige toujours le maître de l’ouvrage Citydev. Conçus comme des batiments passifs, les performances PEB des logements se situent entre 8 et 42 kWh/m².an pour la CEP et entre 0,2 et 14 kWh/m².an pour le BNC.