COURTRAI - OSIERS
Programme
Equipement ,
Logement
Maître d'ouvrage
Commune de Molenbeek Saint-Jean
Localisation
1080 Molenbeek Saint-Jean
Surface
750 m²
Budget
0,900 M € HTVA
PEB
K
Date de conception
Mars 2002
Date de réalisation
Décembre 2005
Statut
Terminé
Crédits images
R²D²
SergeBrison.com

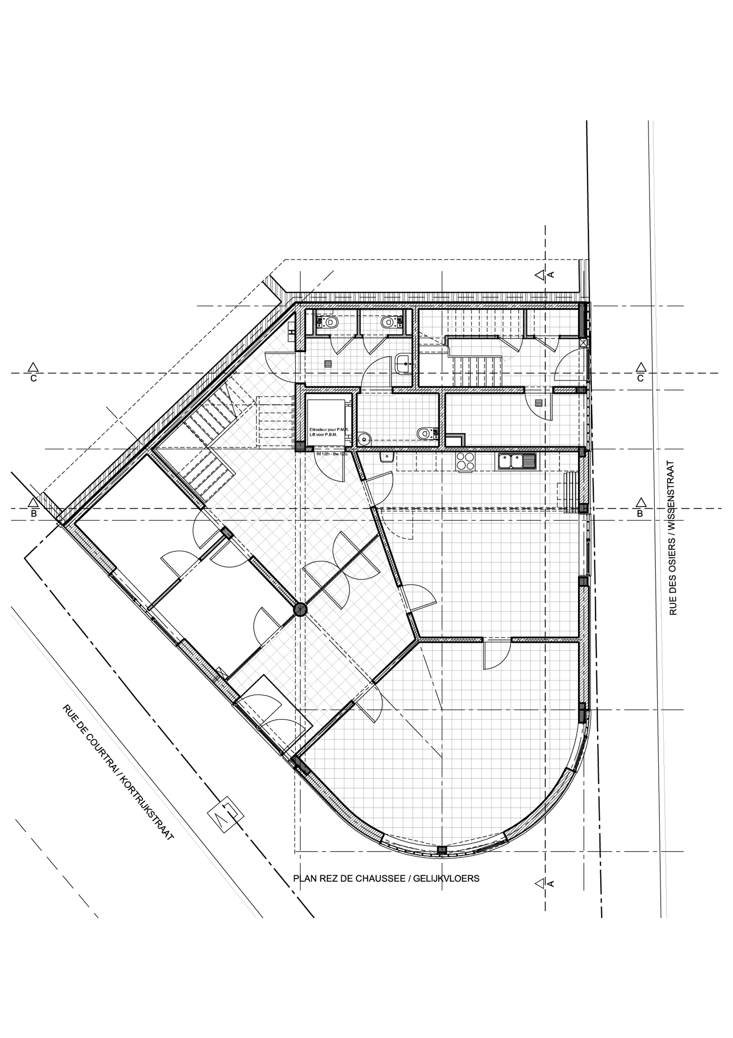
Le nouvel immeuble à l’angle de la rue des Osiers et de la rue de Courtrai est emblématique de la volonté des autorités communales de revisiter le patrimoine local en y adjoignant une dimension sociale. Il regroupe une maison de quartier sur les deux premiers niveaux, et deux logements sociaux sous forme de duplex dans les deux niveaux supérieurs. 

La configuration des lieux et la programmation ont mené la mise en forme de ce projet.

En effet, le travail architectural a d’abord été d’imaginer un volume cohérent permettant l’articulation architecturale entre les rues de Courtai et des Osiers tout en tout en exprimant l’articulation sociale que représente la Maison de Quartier. A l’époque de la conception du bâtiment, l’espace public qui lui faisait face n’était qu’un carrefour sans aucune qualité urbaine; le futur édifice, de part sa position centrale, allait conditionner les lieux et déterminer la définition future de l’espace public. Le gabarit du bâtiment reprend la moyenne de celui des constructions environnantes avec cependant la difficulté d’un raccord sur des murs mitoyens très différents : d’un côté celui d’une maison traditionnelle et de l’autre celui d’un entrepôt sur un seul niveau. Quant à elle, l’expression architecturale du bâtiment est contemporaine et adaptée aux besoins précis du programme sans pour autant nier l’environnement par les références aux différents repères d’alignement (hauteurs des volumes, correspondances avec les immeubles proches…)

La programmation de la maison de quartier comprend une grande salle polyvalente subdivisible et une série d’ateliers pour les enfants mais aussi un espace d’accueil tenu par une équipe d’assistants sociaux. La taille de la parcelle ne permettant pas de loger la salle polyvalente au rez-de-chaussée celle-ci a été placée au premier étage ; le bâtiment s’explique à partir de là. La maison de quartier se développe sur les deux premiers niveaux, les logements se situent aux étages. Leurs entrées respectives sont différenciées : celle de la maison de quartier se fait sur la place, celle des logements dans la rue des Osiers.

Le traitement du volume qui comprend les deux étages de logement est différencié de celui des deux étages de la maison de quartier ; ce parallélépipède est comme posé sur le repli courbe de la façade qui prolonge l’alignement des maisons de la rue des Osiers. Les surfaces de verre translucide utilisé pour la maison de quartier ajoutent encore à cette différenciation au sein du même édifice. Le parallépipède répond à une nécessité d’alignement de lignes de corniches sur la place pour créer une fenêtre sur le ciel, la courbure quant à elle répond au cheminement du piéton et à l’accompagnement naturel de son trajet à l’angle de deux rues. Les différenciations volumétriques permettent d’identifier ses fonctions et dynamisent l’espace. La maison de quartier est largement éclairée par un jeu de baies alternant verres translucides et transparents. Cette transparence crée entre autres  la relation avec  le quartier et distingue les deux fonctions du bâtiment. Les logements quant à eux profitent aussi d’un large éclairement grâce à la variété des orientations des faces du bâtiment et leur développement en duplex.

Ce bâtiment est conçu de façon durable par le choix et l’utilisation de matériaux offrant une très bonne isolation thermique et  phonique, répondant ainsi aux contraintes actuelles de maîtrise des énergies.