HECTOLITRE
CRÈCHE À BRUXELLES
Programme
Equipement
Maître d'ouvrage
Ville de Bruxelles
Localisation
Rue Sainte-Thérèse, 7 à 1000 Bruxelles
Surface
1695 m²
Budget
3,474 M € HTVA
PEB
Passif
Date de conception
Mars 2009
Date de réalisation
Janvier 2016
Statut
Terminé
Crédits images
R²D²
picture©georgesdekinder.com
Publications

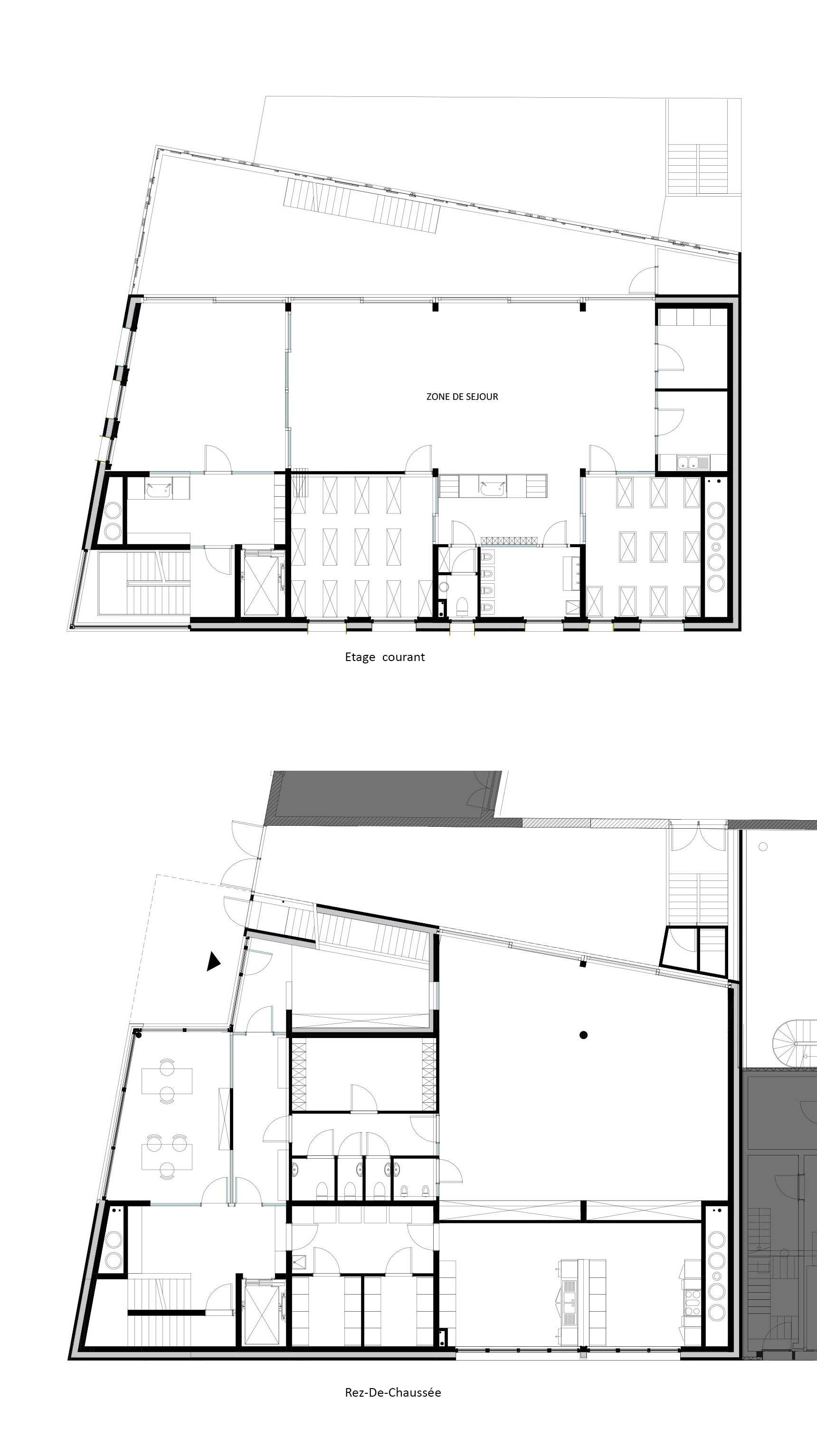
La crèche Hectolitre répond à la demande croissante d’établissements d’accueil de la petite enfance en milieu urbain. Installée sur une parcelle d’angle a priori peu encline à intégrer le programme donné, elle accueille pourtant jusqu’à 66 enfants et 24 employés. Le principal enjeu du projet réside donc dans la qualité de son organisation et dans la flexibilité de son usage.

Conformément au souhait des autorités bruxelloises, la crèche se compose de sections dites « verticales » qui mélangent les âges des enfants. En raison de la taille de la parcelle, l’immeuble se développe verticalement et compte 3 étages.

Le travail graphique est essentiel pour le parti architectural et permet de suggérer, à différents niveaux, le monde végétal et l’imaginaire qui y est associé. Le dessin des poutres-treillis et des garde-corps en verre est une allusion à la végétation absente dans le projet, par manque de place. Le parement en béton coloré et préfabriqué de l’édifice est particulièrement remarquable de par les impressions de grandes feuilles d’arbres qu’il arbore.